PERSPEKTIVE STRASSENANSICHT
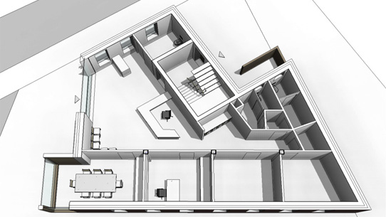
 3D GRUNDRISS ERDGESCHOSS
 3D GRUNDRISS PENTHOUSE
WETTBEWERB BÜROGEBÄUDE MIT PENTHOUSE
Der Entwurf zeigt die Bebauung an einem zentralen Punkt in Ricklingen: zwei Etagen Büros, Kellergeschoss mit Tiefgarage und ein Penthouse über zwei gestaffelte Etagen.

Der verklinkerte Baukörper passt sich zu allen Seiten an die Nachbarbebauung an und staffelt sich dadurch nach oben hin. Ausstellungsraum und Chefzimmer kragen mit einer Metallfassade und großzügigen Fenstern aus dem Baukörper heraus.

(2. Platz)